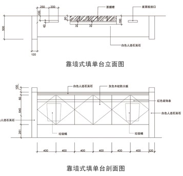
金融、法院家具|工行营业厅家具|办公家具|设计师家具|靠墙式填单台
CG-DSG-T04
产品参数
-
型号:
CG-DSG-T04
-
尺寸:
-
材质:
产品描述
暂未添加










